详细介绍
常州无机布特级防火卷帘门生产厂家
|
常州无机布特级防火卷帘门适用于不设自动喷淋系统的场合,节能,节省投资 |
|
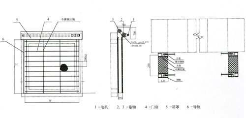
无机布防火卷帘门示意图
常州无机布特级防火卷帘门实拍图 |

详情请致电: 点击直接通话
返回首页 上一页:常州新厂房滑升门生产厂家 下一页:常州厂房快速卷帘门厂家

全国咨询
服务热线17751419837

一门一码
终身服务制度
广泛使用于不设自动喷淋系统的场合,节能,节省投资。
常州无机布特级防火卷帘门生产厂家
|
常州无机布特级防火卷帘门适用于不设自动喷淋系统的场合,节能,节省投资 |
|
无机布防火卷帘门示意图
常州无机布特级防火卷帘门实拍图 |

详情请致电: 点击直接通话
返回首页 上一页:常州新厂房滑升门生产厂家 下一页:常州厂房快速卷帘门厂家